top of page
Accueil
Comment ça marche ?
Offres et services
Nos réalisations
Guide et conseils
Contact
Commandez en ligne !
Demande de permis de construire
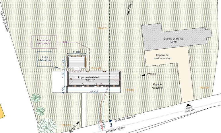
Projet d'extension dans le département de l'Eure (27).
Création d'un espace supplémentaire à cette longère traditionnelle normande pour la création de trois chambres, en ajoutant une touche de modernité.
AVANT
APRES
APRES
AVANT
APRES
AVANT
bottom of page